Sider

torsdag 18. desember 2014

Visio

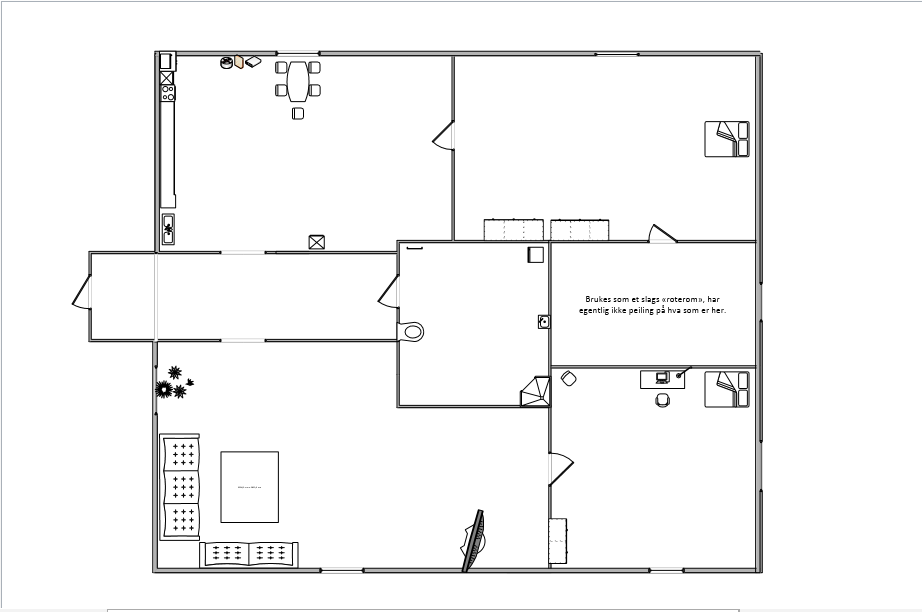
For et par uker siden fikk vi på 2IKA oppgave, der vi skulle lære oss og beherske Visio. Denne oppgaven gikk ut på og tegne en plantegning av hjemmet vårt som inkluderer hjemmenettverket. Som da skulle tegnes i Visio. 

På bildet under ser du en plantegning av hjemmet mitt. Visio var litt komplisert for meg fordi jeg misforsto størrelser og diverse. Og det ble uheldigvis for sent og rette opp i. Men her kan man i alle fall se en tegning som viser tilsammen 7 rom. 




Her kan man da se mitt hjemme nettverk som består av en router, brannmur og et modem. 


Personlig føler jeg ikke selv jeg har enda klart og "beherske" Visio, men jeg prøvde i alle fall. 

Ingen kommentarer:

Legg inn en kommentar